土地面積:208.41㎡ / 63.04坪
地目:宅地
用途地域:指定の無い区域
建蔽率:60 %
容積率:100 %
販売価格:4,800,000円
問合せ先:横田商事株式会社
電話番号:0265-21-0045
すべての
写真を見る
8枚
参考価格 14,500,000円
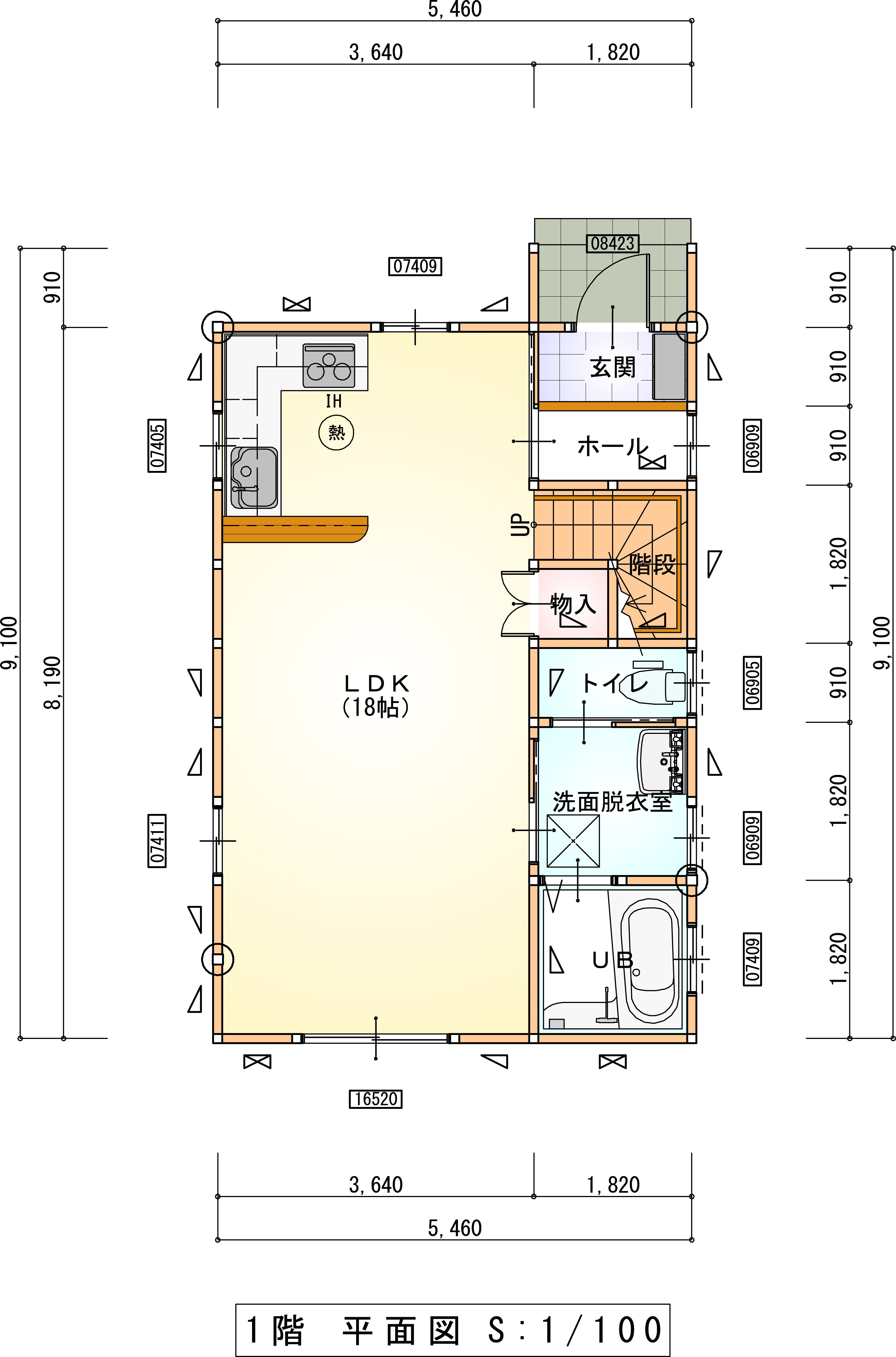
| 建築面積 | 46.37m²(14坪) |
|---|---|
| 1F床面積 | 44.71 m²(13.5坪) |
| 2F床面積 | 39.74 m²(12坪) |
| 延床面積 | 84.45 m²(25.5坪) |
| 総施工面積 | 91.61 m²(27.7坪) |
| 間取り | 3LDK |
| 構造 | 木造在来 |
この家にこんな土地はいかがでしょうか?
土地面積:208.41㎡ / 63.04坪
地目:宅地
用途地域:指定の無い区域
建蔽率:60 %
容積率:100 %
販売価格:4,800,000円
問合せ先:横田商事株式会社
電話番号:0265-21-0045
土地面積:384㎡ / 116.16坪
地目:畑*
用途地域:指定の無い区域
建蔽率:60 %
容積率:100 %
販売価格:3,490,000円
問合せ先:横田商事株式会社
電話番号:0265-21-0045
土地面積:214.09㎡ / 64.76坪
地目:宅地
用途地域:工業地域
建蔽率:60 %
容積率:200 %
販売価格:5,500,000円
問合せ先:横田商事株式会社
電話番号:0265-21-0045
土地面積:573㎡ / 173.33坪
地目:田
用途地域:指定なし
建蔽率:60 %
容積率:100 %
販売価格:500,000円
問合せ先:横田商事株式会社
電話番号:0265-21-0045
土地面積:303.36㎡ / 91.76坪
地目:宅地
用途地域:第二種住居地域
建蔽率:60 %
容積率:200 %
販売価格:10,200,000円
問合せ先:横田商事株式会社
電話番号:0265-21-0045